No i ładnie No i ładnie

Bajkowy horyzont

image
Zaprojektowane przez:
Karolina Kubica
Właściciel wnętrza
Basia
image
tag
image2
image3
image4
image5
image6
image1
image2
image3
image4
image5
image6

Przesuń suwak i zobacz jak zmieniło się wnętrze

before after


Przed
image
image
image
Po
image
image
image

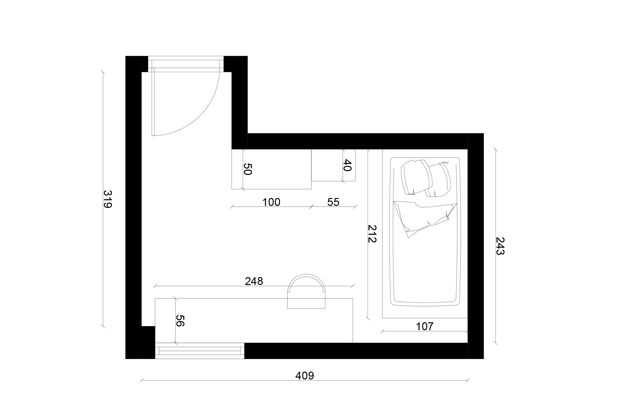
Pokój zaprojektowany dla dziewięcioletniej dziewczynki, która pasjonuje się akrobatyką i uwielbia kolor niebieski, łączy w sobie funkcjonalność i osobiste akcenty. Meble z kolekcji SERGIO zapewniają dużo miejsca do przechowywania i organizacji, a jednocześnie wprowadzają nowoczesny styl. Kolor niebieski dominuje w dodatkach i akcentach, nadając wnętrzu energetyczny, ale zarazem spokojny klimat. Całość tworzy przestrzeń, która będzie rozwijać się wraz z dziewczynką, pozostając jednocześnie estetyczna i praktyczna na kolejne lata.


image
Więcej realizacji tego samego projektanta
Dorotaw
Metamorfoza obejmująca pomieszczenie, które pełni funkcję kuchni. Kuchnia zyskała sporo nowej przestrzeni do przechowywania, dzięki funkcjonalnym blatom oraz szafkom.
Ewson
Pomieszczenie to połączenie stylu nowoczesnego z akcentami elegancji. Taki akcent stanowi między innymi łóżko FABRIZZO SQUERE P, które dzięki pikowanemu zagłówkowi, jest wygodne oraz subtelne. Ryflowane szafki nocne TOMIE w ciemnym kolorze, dodają stylowego charakteru. Sypialnia zachowana w jasnych barwach, dzięki czemu jest świeża i przejrzysta dla oka.
Krzemi
Elegancka sypialnia, która stanowi połączenie komfortowego miejsca wypoczynku oraz przestrzeni do pracy. Modne łóżko CELINE z wygodnym, pikowanym zagłówkiem stanowi centralny element sypialni. Pojemna szafa BASTIA, z dużym lustrem, to pojemny mebel, który pomieści wiele dużą część garderoby.
Grzegorz
Pokój dla 13-latki w minimalistycznym stylu, zachowany w jasnych barwach. Meble z kolekcji FEMII w kolorze białym alpejskim, sprawią, że wnętrze zyskuje lekkości i świeżości.
Realizacje z kategorii #pokój dziecka
Grzegorz
Pokój dla 13-latki w minimalistycznym stylu, zachowany w jasnych barwach. Meble z kolekcji FEMII w kolorze białym alpejskim, sprawią, że wnętrze zyskuje lekkości i świeżości.
IgorKruk
Pokój chłopca, wchodzącego w wiek nastoletni. Chłopiec łączy zamiłowanie do piłki nożnej, Formuły 1 oraz tworzenia wymyślnych konstrukcji z klocków LEGO. W metamorfozie postaraliśmy się połączyć te różne światy, dając tym samym miejsce i przestrzeń do realizowania się w nich.
Lukumi
Pokój w odcieniach zieleni, z połączeniem drewna oraz beżu. Nad biurkiem zamontowana została półka oraz szafki, które pozwolą na przechowywanie książek oraz ulubionych klocków lego.
Andrzej
Projekt metamorfozy, to pokój nastolatka, pasjonującego się piłką nożną, dlatego też na jednej ze ścian pojawiła się tapeta zwracająca uwagę na tę tematykę. Stonowana kolorystyka z dominantą szarości i bieli oraz meble z kolekcji MAX MODERN, sprawiają, że pokój jest nowoczesny, ale i jednocześnie przytulny.
Inne realizacje
Dorotaw
Metamorfoza obejmująca pomieszczenie, które pełni funkcję kuchni. Kuchnia zyskała sporo nowej przestrzeni do przechowywania, dzięki funkcjonalnym blatom oraz szafkom.
Ewson
Pomieszczenie to połączenie stylu nowoczesnego z akcentami elegancji. Taki akcent stanowi między innymi łóżko FABRIZZO SQUERE P, które dzięki pikowanemu zagłówkowi, jest wygodne oraz subtelne. Ryflowane szafki nocne TOMIE w ciemnym kolorze, dodają stylowego charakteru. Sypialnia zachowana w jasnych barwach, dzięki czemu jest świeża i przejrzysta dla oka.
Krzemi
Elegancka sypialnia, która stanowi połączenie komfortowego miejsca wypoczynku oraz przestrzeni do pracy. Modne łóżko CELINE z wygodnym, pikowanym zagłówkiem stanowi centralny element sypialni. Pojemna szafa BASTIA, z dużym lustrem, to pojemny mebel, który pomieści wiele dużą część garderoby.
Grzegorz
Pokój dla 13-latki w minimalistycznym stylu, zachowany w jasnych barwach. Meble z kolekcji FEMII w kolorze białym alpejskim, sprawią, że wnętrze zyskuje lekkości i świeżości.

W celu dostosowania strony do Twoich preferencji oraz zainteresowań przechowujemy na urządzeniu, z którego korzystasz (komputerze, telefonie itp.) tzw. „pliki cookies” i im podobne, z możliwością ich odczytu. Klikając „ Akceptuje” lub zamykając okno przy pomocy przycisku „X” wyrażasz zgodę na przetwarzanie Twoich danych. Pamiętaj, możesz w każdej chwili nie wyrazić zgody lub cofnąć zgodę na przetwarzanie Twoich danych osobowych.

Ponadto informujemy, że administratorem danych zawartych w tych plikach jest Agata S.A. Dane mogą być przetwarzane przez nas i naszych zaufanych partnerów w celach marketingowych, w szczególności poprzez wyświetlanie spersonalizowanych reklam, na podstawie naszego prawnie uzasadnionego interesu Więcej informacji na temat zasad przetwarzania danych osobowych, w tym o Twoich uprawnieniach, znajdziesz w naszej Polityce Prywatności.