No i ładnie No i ładnie

Duża sypialnia z wygodnym łóżkiem

image
Zaprojektowane przez:
Szymon Machaczka
Właściciel wnętrza
Martita
image
tag
tag
image2
image3
image4
image1
image2
image3
image4

Przesuń suwak i zobacz jak zmieniło się wnętrze

before after


Przed
image
image
Po
image
image

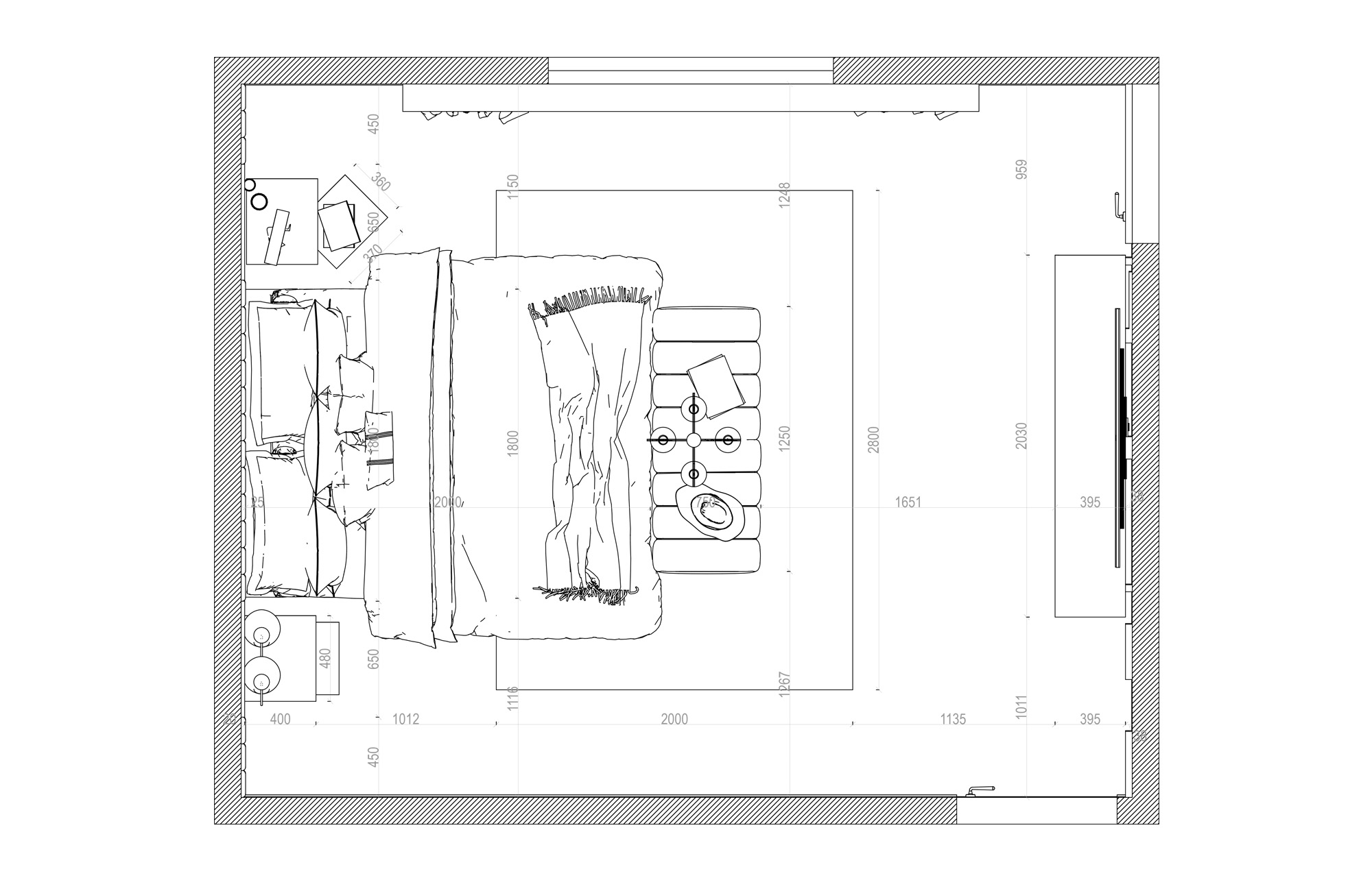
Duża sypialnia z wyeksponowanym łóżkiem składającym się z ramy FIBI FULL oraz paneli tapicerowanych FIBI służących jako wysokie efektowne wezgłowie. Ściana skomponowana z paneli oraz dwóch kawałków płyty meblowej wygląda bardzo ciekawie a dzięki tapicerce w kolorze ecru pomieszczenie stało się bardzo przytulne. Naprzeciwko łóżka znalazła się szafka RTV DASY również w kolorze beżowym. Ma ponad 2 metry długości – dzięki czemu znajduje się w niej sporo miejsca. Stoliki nocne zostały zastąpione dwuczęściowymi stolikami kawowymi SONOMA. Dodatkowym elementem w sypialni jest duży puf GAPPA w kolorze czarnym. Puf może pełnić funkcję dodatkowego siedziska lub funkcję pomocnika.


image
Więcej realizacji tego samego projektanta
Ela
Złote dodatki pojawiające się w wielu miejscach takich jak bateria zlewozmywakowa, okap czy gałki dodają wnętrzu luksusowego wyglądu, a duży okrągły stół z serii OSLO idealnie wpasowuje się we wnętrze. Ponadto w zestawieniu z welurowymi krzesłami ABADA, kącik jadalniany jest nie tylko funkcjonalny, ale i elegancki.
Sylwia323
Pokój dla 4-letniej dziewczynki o którym marzyła. Kuchnię zmieniliśmy w dziecięce królestwo z miejscem do nauki i malowania.
AnaBa
Aranżacja pomieszczenia, które spełnia kilka funkcji, w związku z tym niezbędnym było, aby znalazła się w nim wygodna kanapa. W pomieszczeniu należało także ująć szafki, które pozwolą uporządkować przestrzeń oraz kącik ze stołem i krzesłami, idealny do wspólnych posiłków, jak i pracy. Całość zaprezentowana w jasnych odcieniach, dzięki czemu pokój zyskał optycznie więcej miejsca.
Honorata
Metamorfoza pomieszczenia obejmuje przemianę pokoju dziewczynki, idącej do pierwszej klasy. Jej potrzeby obejmowały wobec tego dołożenie biurka, dużej szafy oraz regału na książki. Pokój zyskał na przestrzeni, a przy tym stał się przytulny i funkcjonalny.
Realizacje z kategorii #sypialnia
Ewson
Pomieszczenie to połączenie stylu nowoczesnego z akcentami elegancji. Taki akcent stanowi między innymi łóżko FABRIZZO SQUERE P, które dzięki pikowanemu zagłówkowi, jest wygodne oraz subtelne. Ryflowane szafki nocne TOMIE w ciemnym kolorze, dodają stylowego charakteru. Sypialnia zachowana w jasnych barwach, dzięki czemu jest świeża i przejrzysta dla oka.
Krzemi
Elegancka sypialnia, która stanowi połączenie komfortowego miejsca wypoczynku oraz przestrzeni do pracy. Modne łóżko CELINE z wygodnym, pikowanym zagłówkiem stanowi centralny element sypialni. Pojemna szafa BASTIA, z dużym lustrem, to pojemny mebel, który pomieści wiele dużą część garderoby.
Justyna
Wnętrze dla dwóch dorosłych kobiet, które pełni rolę zarówno przytulnego pokoju dziennego, jak i funkcjonalnego kącika biurowego.
Sgh14
Delikatny styl boho to swoboda aranżacji, kreatywne detale oraz ciepłe kolory. W tej sypialni akcenty zieleni tworzą zgraną całość, zanurz się w przytulnym wnętrzu.
Inne realizacje
Dorotaw
Metamorfoza obejmująca pomieszczenie, które pełni funkcję kuchni. Kuchnia zyskała sporo nowej przestrzeni do przechowywania, dzięki funkcjonalnym blatom oraz szafkom.
Ewson
Pomieszczenie to połączenie stylu nowoczesnego z akcentami elegancji. Taki akcent stanowi między innymi łóżko FABRIZZO SQUERE P, które dzięki pikowanemu zagłówkowi, jest wygodne oraz subtelne. Ryflowane szafki nocne TOMIE w ciemnym kolorze, dodają stylowego charakteru. Sypialnia zachowana w jasnych barwach, dzięki czemu jest świeża i przejrzysta dla oka.
Krzemi
Elegancka sypialnia, która stanowi połączenie komfortowego miejsca wypoczynku oraz przestrzeni do pracy. Modne łóżko CELINE z wygodnym, pikowanym zagłówkiem stanowi centralny element sypialni. Pojemna szafa BASTIA, z dużym lustrem, to pojemny mebel, który pomieści wiele dużą część garderoby.
Grzegorz
Pokój dla 13-latki w minimalistycznym stylu, zachowany w jasnych barwach. Meble z kolekcji FEMII w kolorze białym alpejskim, sprawią, że wnętrze zyskuje lekkości i świeżości.

W celu dostosowania strony do Twoich preferencji oraz zainteresowań przechowujemy na urządzeniu, z którego korzystasz (komputerze, telefonie itp.) tzw. „pliki cookies” i im podobne, z możliwością ich odczytu. Klikając „ Akceptuje” lub zamykając okno przy pomocy przycisku „X” wyrażasz zgodę na przetwarzanie Twoich danych. Pamiętaj, możesz w każdej chwili nie wyrazić zgody lub cofnąć zgodę na przetwarzanie Twoich danych osobowych.

Ponadto informujemy, że administratorem danych zawartych w tych plikach jest Agata S.A. Dane mogą być przetwarzane przez nas i naszych zaufanych partnerów w celach marketingowych, w szczególności poprzez wyświetlanie spersonalizowanych reklam, na podstawie naszego prawnie uzasadnionego interesu Więcej informacji na temat zasad przetwarzania danych osobowych, w tym o Twoich uprawnieniach, znajdziesz w naszej Polityce Prywatności.