No i ładnie No i ładnie

Nowoczesna kuchnia z akcentem glamour

image
Zaprojektowane przez:
Szymon Machaczka
Właściciel wnętrza
Jadzia
image
tag
tag
tag
tag
tag
tag
tag
tag
image2
image3
image4
image1
image2
image3
image4

Przesuń suwak i zobacz jak zmieniło się wnętrze

before after


Przed
image
image
Po
image
image

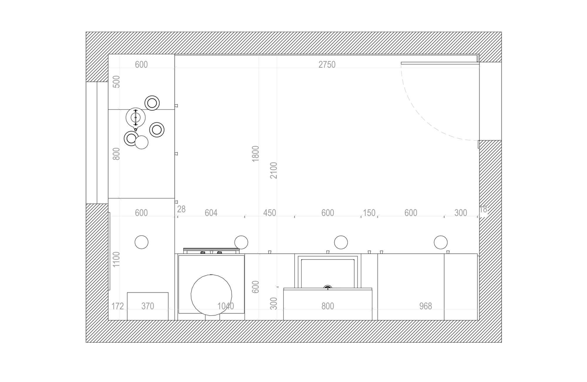
Nowoczesna kuchnia z akcentem glamour. Zastosowane białe fronty MADERA świetnie sprawdzają się w zestawieniu z jasną kolorystyką wnętrza. Ich cechą charakterystyczną jest gładka powierzchnia z matowym wykończeniem. Kontrastowym połączeniem jest akcent w postaci szałwiowej zieleni, który pojawia się na frontach z przeszkleniem FRAME w eleganckich, wiszących szafkach, które pomaga wyeksponować ozdobne naczynia i szkło. Szafki dodają również wnętrzu lekkości i sprawiają, że przestrzeń optycznie się powiększa. Blat w kolorze dębu sonoma rozjaśnia wnętrze, a jego kolorystyka podkreśla tradycyjny charakter kuchni i dodaje jej ciepła i naturalności. Charakterystyczna dla dębu faktura drewna dodaje całości elegancji. Właścicielce kuchni zależało, aby w pomieszczeniu znalazło się miejsce na pralkę – została ona zabudowana pod lodówką.

 

Przedstawiona metamorfoza jest wizualizacją nowej aranżacji. Po szczegółowy projekt kuchni zapraszamy do sklepów Agata w całej Polsce. Prezentowana oferta modułowych mebli kuchennych Qubik ważna jest na dzień publikacji i może ulec zmianie.


image
Więcej realizacji tego samego projektanta
Ela
Złote dodatki pojawiające się w wielu miejscach takich jak bateria zlewozmywakowa, okap czy gałki dodają wnętrzu luksusowego wyglądu, a duży okrągły stół z serii OSLO idealnie wpasowuje się we wnętrze. Ponadto w zestawieniu z welurowymi krzesłami ABADA, kącik jadalniany jest nie tylko funkcjonalny, ale i elegancki.
Sylwia323
Pokój dla 4-letniej dziewczynki o którym marzyła. Kuchnię zmieniliśmy w dziecięce królestwo z miejscem do nauki i malowania.
AnaBa
Aranżacja pomieszczenia, które spełnia kilka funkcji, w związku z tym niezbędnym było, aby znalazła się w nim wygodna kanapa. W pomieszczeniu należało także ująć szafki, które pozwolą uporządkować przestrzeń oraz kącik ze stołem i krzesłami, idealny do wspólnych posiłków, jak i pracy. Całość zaprezentowana w jasnych odcieniach, dzięki czemu pokój zyskał optycznie więcej miejsca.
Honorata
Metamorfoza pomieszczenia obejmuje przemianę pokoju dziewczynki, idącej do pierwszej klasy. Jej potrzeby obejmowały wobec tego dołożenie biurka, dużej szafy oraz regału na książki. Pokój zyskał na przestrzeni, a przy tym stał się przytulny i funkcjonalny.
Realizacje z kategorii #kuchnia
Dorotaw
Metamorfoza obejmująca pomieszczenie, które pełni funkcję kuchni. Kuchnia zyskała sporo nowej przestrzeni do przechowywania, dzięki funkcjonalnym blatom oraz szafkom.
Beata
Ta kuchnia łączy w sobie nowoczesną biel frontów w białym połysku, z ciepłem drewna, tworząc przytulne, a zarazem nowoczesne wnętrze. Połączenie funkcjonalne i nowoczesne.
alakons
Dzięki stylowemu połączeniu kuchni z salonem oraz jadalnią, powiedzenie "przez żołądek do serca", nabiera nowego wymiaru. Zasiądźcie wspólnie z rodziną do stołu, lub wypocznijcie na wygodnych fotelach, zagłębiając się w swoim towarzystwie.
Ela
Złote dodatki pojawiające się w wielu miejscach takich jak bateria zlewozmywakowa, okap czy gałki dodają wnętrzu luksusowego wyglądu, a duży okrągły stół z serii OSLO idealnie wpasowuje się we wnętrze. Ponadto w zestawieniu z welurowymi krzesłami ABADA, kącik jadalniany jest nie tylko funkcjonalny, ale i elegancki.
Inne realizacje
Dorotaw
Metamorfoza obejmująca pomieszczenie, które pełni funkcję kuchni. Kuchnia zyskała sporo nowej przestrzeni do przechowywania, dzięki funkcjonalnym blatom oraz szafkom.
Ewson
Pomieszczenie to połączenie stylu nowoczesnego z akcentami elegancji. Taki akcent stanowi między innymi łóżko FABRIZZO SQUERE P, które dzięki pikowanemu zagłówkowi, jest wygodne oraz subtelne. Ryflowane szafki nocne TOMIE w ciemnym kolorze, dodają stylowego charakteru. Sypialnia zachowana w jasnych barwach, dzięki czemu jest świeża i przejrzysta dla oka.
Krzemi
Elegancka sypialnia, która stanowi połączenie komfortowego miejsca wypoczynku oraz przestrzeni do pracy. Modne łóżko CELINE z wygodnym, pikowanym zagłówkiem stanowi centralny element sypialni. Pojemna szafa BASTIA, z dużym lustrem, to pojemny mebel, który pomieści wiele dużą część garderoby.
Grzegorz
Pokój dla 13-latki w minimalistycznym stylu, zachowany w jasnych barwach. Meble z kolekcji FEMII w kolorze białym alpejskim, sprawią, że wnętrze zyskuje lekkości i świeżości.

W celu dostosowania strony do Twoich preferencji oraz zainteresowań przechowujemy na urządzeniu, z którego korzystasz (komputerze, telefonie itp.) tzw. „pliki cookies” i im podobne, z możliwością ich odczytu. Klikając „ Akceptuje” lub zamykając okno przy pomocy przycisku „X” wyrażasz zgodę na przetwarzanie Twoich danych. Pamiętaj, możesz w każdej chwili nie wyrazić zgody lub cofnąć zgodę na przetwarzanie Twoich danych osobowych.

Ponadto informujemy, że administratorem danych zawartych w tych plikach jest Agata S.A. Dane mogą być przetwarzane przez nas i naszych zaufanych partnerów w celach marketingowych, w szczególności poprzez wyświetlanie spersonalizowanych reklam, na podstawie naszego prawnie uzasadnionego interesu Więcej informacji na temat zasad przetwarzania danych osobowych, w tym o Twoich uprawnieniach, znajdziesz w naszej Polityce Prywatności.