No i ładnie No i ładnie

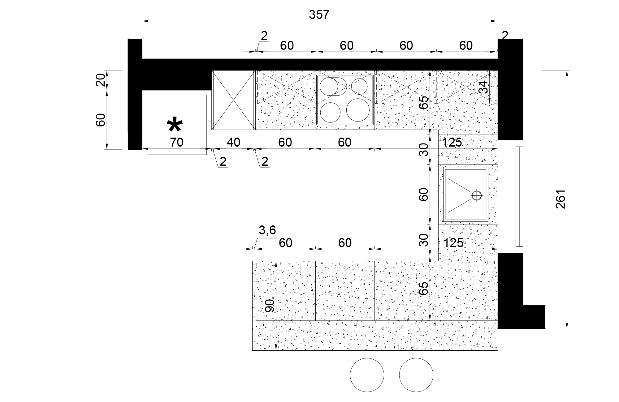
Nowoczesna kuchnia z elementami ryflowanymi

image
Zaprojektowane przez:
Magdalena Mrozek
Właściciel wnętrza
Dziuda
image
tag
tag
tag
tag
image2
image3
image4
image5
image1
image2
image3
image4
image5

Przesuń suwak i zobacz jak zmieniło się wnętrze

before after


Przed
image
image
image
Po
image
image
image

Nowoczesna kuchnia z dominującymi frontami ryflowanymi, to przestronne i funkcjonalne pomieszczenie, które cechuje się designem wpisującym się w aktualne trendy. Połączenie frontów w kolorze drewnopodobnym z szafkami w modnym kolorze cashmere to łatwy przepis na stworzenie przytulnej przestrzeni. Dodatkowo okno nad blatem zapewniające dużo naturalnego światła, a także eleganckie oświetlenie LED nad blatem kuchennym. Całość tworzy harmonijną przestrzeń, która zachęca do spędzania czasu w kuchni i gotowania ulubionych potraw.


image
Więcej realizacji tego samego projektanta
Xxx
Loftowe wnętrze to idealne połączenie surowości cegły, z funkcjonalnością pomieszczenia dla młodzieży. Dodatek dla wnętrza stanowi komiksowa tapeta, a praktyczne meble, takie jak szafa Adbox, czy biurko narożne tworzą zgraną przestrzeń.
Zofia
Przestrzenie na poddaszu wymagają specjalnego potraktowania. Połączenie jasnych i pastelowych barw optycznie powiększa wnętrze i dodaje przytulności.
Pandaa
Sypialnia jest przestrzenią, w której każdy z nas pragnie wypoczynku. Z wizualizacją zaproponowaną przez nas, relaks jest na wyciągnięcie ręki! Pokój w stonowanych barwach, zachowany w loftowym stylu. Rozsiądź się wygodnie na dużym łóżku KONTREXT i odpłyń w błogi sen!
MacTur
Sypialnia w, której królują odcienie beżu i naturalnego drewna. Taki efekt mogliśmy uzyskać głównie dzięki okazałemu modelowi łóżka CELINE w modnej tapicerce typu boucla. Jako, że sypialnia to również garderoba, świetnie w takich przypadkach radzą sobie szafy ADBOX, które możemy dowolnie skonfigurować.
Realizacje z kategorii #kuchnia
Dorotaw
Metamorfoza obejmująca pomieszczenie, które pełni funkcję kuchni. Kuchnia zyskała sporo nowej przestrzeni do przechowywania, dzięki funkcjonalnym blatom oraz szafkom.
Beata
Ta kuchnia łączy w sobie nowoczesną biel frontów w białym połysku, z ciepłem drewna, tworząc przytulne, a zarazem nowoczesne wnętrze. Połączenie funkcjonalne i nowoczesne.
alakons
Dzięki stylowemu połączeniu kuchni z salonem oraz jadalnią, powiedzenie "przez żołądek do serca", nabiera nowego wymiaru. Zasiądźcie wspólnie z rodziną do stołu, lub wypocznijcie na wygodnych fotelach, zagłębiając się w swoim towarzystwie.
Ela
Złote dodatki pojawiające się w wielu miejscach takich jak bateria zlewozmywakowa, okap czy gałki dodają wnętrzu luksusowego wyglądu, a duży okrągły stół z serii OSLO idealnie wpasowuje się we wnętrze. Ponadto w zestawieniu z welurowymi krzesłami ABADA, kącik jadalniany jest nie tylko funkcjonalny, ale i elegancki.
Inne realizacje
Dorotaw
Metamorfoza obejmująca pomieszczenie, które pełni funkcję kuchni. Kuchnia zyskała sporo nowej przestrzeni do przechowywania, dzięki funkcjonalnym blatom oraz szafkom.
Ewson
Pomieszczenie to połączenie stylu nowoczesnego z akcentami elegancji. Taki akcent stanowi między innymi łóżko FABRIZZO SQUERE P, które dzięki pikowanemu zagłówkowi, jest wygodne oraz subtelne. Ryflowane szafki nocne TOMIE w ciemnym kolorze, dodają stylowego charakteru. Sypialnia zachowana w jasnych barwach, dzięki czemu jest świeża i przejrzysta dla oka.
Krzemi
Elegancka sypialnia, która stanowi połączenie komfortowego miejsca wypoczynku oraz przestrzeni do pracy. Modne łóżko CELINE z wygodnym, pikowanym zagłówkiem stanowi centralny element sypialni. Pojemna szafa BASTIA, z dużym lustrem, to pojemny mebel, który pomieści wiele dużą część garderoby.
Grzegorz
Pokój dla 13-latki w minimalistycznym stylu, zachowany w jasnych barwach. Meble z kolekcji FEMII w kolorze białym alpejskim, sprawią, że wnętrze zyskuje lekkości i świeżości.

W celu dostosowania strony do Twoich preferencji oraz zainteresowań przechowujemy na urządzeniu, z którego korzystasz (komputerze, telefonie itp.) tzw. „pliki cookies” i im podobne, z możliwością ich odczytu. Klikając „ Akceptuje” lub zamykając okno przy pomocy przycisku „X” wyrażasz zgodę na przetwarzanie Twoich danych. Pamiętaj, możesz w każdej chwili nie wyrazić zgody lub cofnąć zgodę na przetwarzanie Twoich danych osobowych.

Ponadto informujemy, że administratorem danych zawartych w tych plikach jest Agata S.A. Dane mogą być przetwarzane przez nas i naszych zaufanych partnerów w celach marketingowych, w szczególności poprzez wyświetlanie spersonalizowanych reklam, na podstawie naszego prawnie uzasadnionego interesu Więcej informacji na temat zasad przetwarzania danych osobowych, w tym o Twoich uprawnieniach, znajdziesz w naszej Polityce Prywatności.