No i ładnie No i ładnie

Nowoczesny i praktyczny salon

image
Zaprojektowane przez:
Oliwia Drobnicka
Właściciel wnętrza
Martyna25
image
tag
tag
tag
image2
image3
image4
image5
image1
image2
image3
image4
image5

Przesuń suwak i zobacz jak zmieniło się wnętrze

before after


Przed
image
image
image
Po
image
image
image

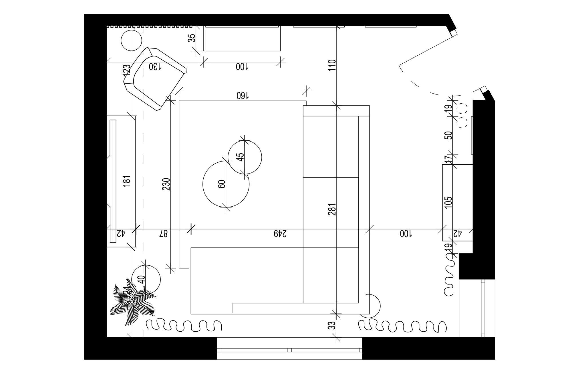
Przedstawiamy metamorfozę salonu, dzięki której uzyskaliśmy ciepłą i przytulną przestrzeń z charakterem. Piękna i funkcjonalna sofa narożna PORTIMAO w soczyście granatowym odcieniu gra tu główną rolę. Loftowego pazura dodają jej designerskie meble z kolekcji SEWILL. Całość została uzupełniona o dodatki w odcieniach złota oraz modnego koloru musztardowego. Lampa SOHO jest swoistą wisienką na torcie całego założenia. Wieczór z kocykiem i książką? Nie ma lepszego wyboru od fotela ELIS z funkcją relaksu, z idealnym doświetleniem klasycznej lampy podłogowej LINO. Konsola EXETER z lustrem to idealny duet dla wnętrza, w którym przeplata się mocny charakter loftu z wyrafinowaną elegancją.


image
Więcej realizacji tego samego projektanta
BeaZak
Jak stworzyć pokój dziecka, który będzie rósł razem z nim? Zobacz jasne i przytulne wnętrze stworzone dla dziewczynki.
Martak
Zmiana na jasne, stonowane kolory dodała szyku w salonie z jadalnią.
abcaga
Stworzenie pokoiku dla rocznego malucha wymaga zapewnienia dziecku przestrzeni, która umożliwi swobodny wypoczynek oraz sprawi, że codzienne zabawy i nauka nabiorą wesołych barw. Układ jest dostosowany tak, aby ułatwić rodzicom opiekę - przy łóżeczku pojawił się wygodny fotel, a z nim lampka, dzięki czemu rodzice będą mogli czytać chłopcu ulubione bajki do snu. Jest także sporo miejsca do przechowywania ubranek czy zabawek - dzięki pojemnej szafie oraz regałom.
Roza
Metamorfoza pokoju dla 7-letniego chłopca. Pomieszczenie zachowane w kolorach grantu oraz bieli, z dodatkiem ryflowań. Taka kompozycja kolorów ożywia wnętrze, ale i nadaje mu przytulny charakter.
Realizacje z kategorii #salon
Anastazja
Kompleksowa przemiana pokoju dziennego, który stanowi połączenie salonu i jadalni. Niegdyś mało doświetlone pomieszczenie, stanowi teraz funkcjonalną oraz komfortową strefę. Krzesła welurowe LIANA dodają przestrzeni szykownego charakteru, a wygodna 3-osobowa sofa GENF, oferuje dodatkowe miejsce do siedzenia.
halinam
Metamorfoza pokoju starszych osób. Ważny element pomieszczenia stanowi wygodna kanapa, która umożliwi komfortowy wypoczynek oraz przyjmowanie gości. Meble z kolekcji SAINT TROPEZ, z jasnymi, błyszczącymi frontami, dodają nowoczesności oraz rozświetlają przestrzeń.
AleksandraPl
Pokój dla dwóch licealistek. Na ścianach znalazły się dekoracyjne panele, które idealnie dostrajają wnętrze. Przestrzeń została wyposażona w niezbędne wyposażenie, które zapewni komfort i wygodę nastolatkom.
Justi
Salon wraz z miejscem na jadalnie, jest centralnym punktem dla całego domu, a zatem musi dawać poczucie miejsca, w którym spędzanie czasu to czysta przyjemność! Aranżacja pomieszczenia, zachowana w jasnych barwach, z drewnianymi elementami to przytulna przystań do relaksu czy spotkań z najbliższymi.
Inne realizacje
Dorotaw
Metamorfoza obejmująca pomieszczenie, które pełni funkcję kuchni. Kuchnia zyskała sporo nowej przestrzeni do przechowywania, dzięki funkcjonalnym blatom oraz szafkom.
Ewson
Pomieszczenie to połączenie stylu nowoczesnego z akcentami elegancji. Taki akcent stanowi między innymi łóżko FABRIZZO SQUERE P, które dzięki pikowanemu zagłówkowi, jest wygodne oraz subtelne. Ryflowane szafki nocne TOMIE w ciemnym kolorze, dodają stylowego charakteru. Sypialnia zachowana w jasnych barwach, dzięki czemu jest świeża i przejrzysta dla oka.
Krzemi
Elegancka sypialnia, która stanowi połączenie komfortowego miejsca wypoczynku oraz przestrzeni do pracy. Modne łóżko CELINE z wygodnym, pikowanym zagłówkiem stanowi centralny element sypialni. Pojemna szafa BASTIA, z dużym lustrem, to pojemny mebel, który pomieści wiele dużą część garderoby.
Grzegorz
Pokój dla 13-latki w minimalistycznym stylu, zachowany w jasnych barwach. Meble z kolekcji FEMII w kolorze białym alpejskim, sprawią, że wnętrze zyskuje lekkości i świeżości.

W celu dostosowania strony do Twoich preferencji oraz zainteresowań przechowujemy na urządzeniu, z którego korzystasz (komputerze, telefonie itp.) tzw. „pliki cookies” i im podobne, z możliwością ich odczytu. Klikając „ Akceptuje” lub zamykając okno przy pomocy przycisku „X” wyrażasz zgodę na przetwarzanie Twoich danych. Pamiętaj, możesz w każdej chwili nie wyrazić zgody lub cofnąć zgodę na przetwarzanie Twoich danych osobowych.

Ponadto informujemy, że administratorem danych zawartych w tych plikach jest Agata S.A. Dane mogą być przetwarzane przez nas i naszych zaufanych partnerów w celach marketingowych, w szczególności poprzez wyświetlanie spersonalizowanych reklam, na podstawie naszego prawnie uzasadnionego interesu Więcej informacji na temat zasad przetwarzania danych osobowych, w tym o Twoich uprawnieniach, znajdziesz w naszej Polityce Prywatności.