No i ładnie No i ładnie

Połączenie aneksu kuchennego z salonem w stylu skandynawskim

image
Zaprojektowane przez:
Karolina Kubica
Właściciel wnętrza
Malgorzatkowo
image
tag
tag
tag
tag
image2
image3
image4
image5
image1
image2
image3
image4
image5

Przesuń suwak i zobacz jak zmieniło się wnętrze

before after


Przed
image
Po
image

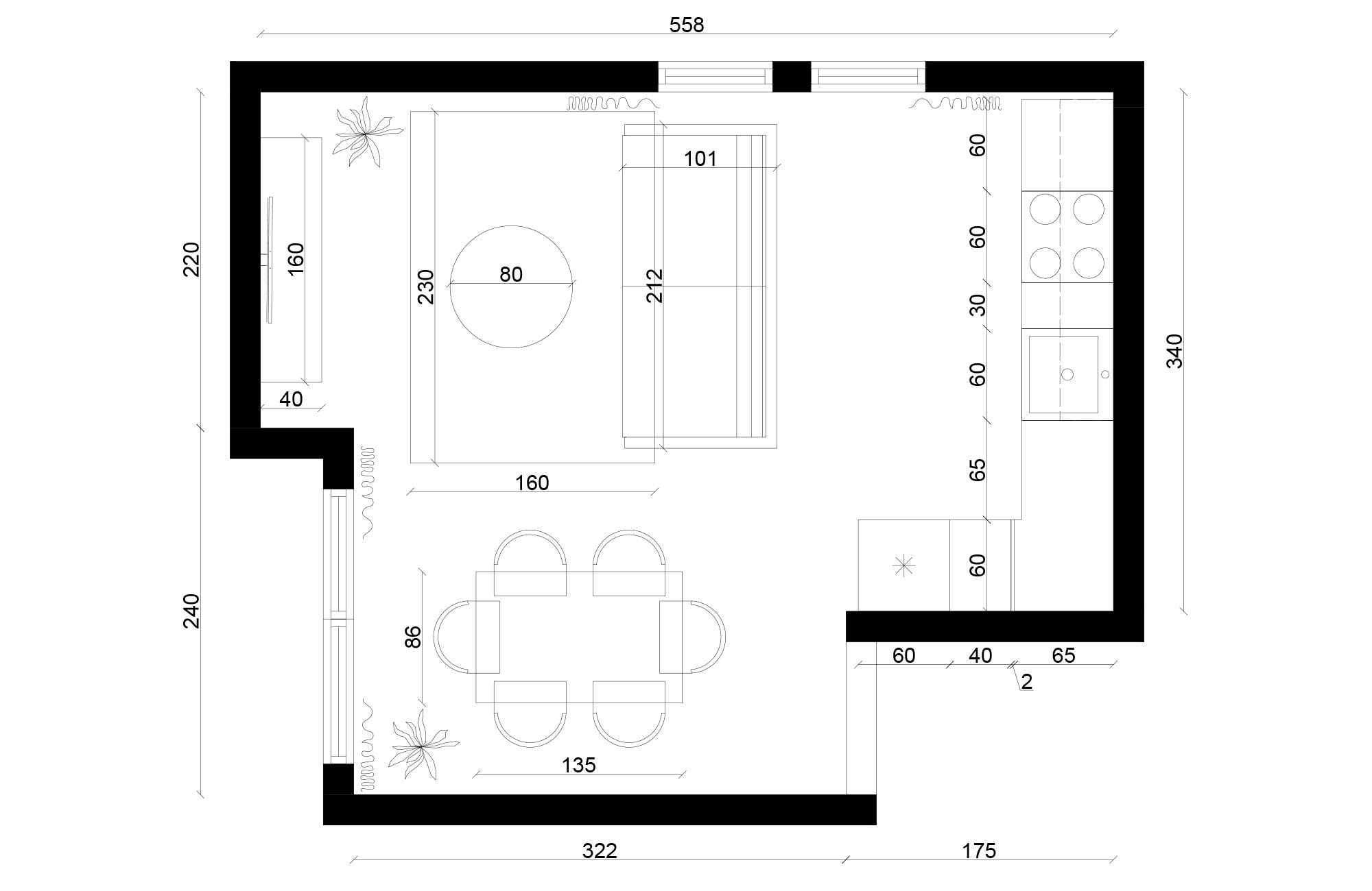
Metamorfoza salonu z kuchnią i jadalnią, której celem było rozjaśnienie wnętrza. W aranżacji kuchni zastosowano jasne i naturalne materiały. Białe fronty PIANTA wykończone w połysku połączono z blatem w wybarwieniu dębu hamilton, który idealnie komponuje się ze stylem skandynawskim oraz szarością na ścianie. W jadalni znalazł się wygodny stół LANZETTE z możliwością rozłożenia, a do tego dodano pasującą szafkę RTV w nowoczesnym wzornictwie oraz geometryczne grafiki ścienne. 


image
Więcej realizacji tego samego projektanta
Dorotaw
Metamorfoza obejmująca pomieszczenie, które pełni funkcję kuchni. Kuchnia zyskała sporo nowej przestrzeni do przechowywania, dzięki funkcjonalnym blatom oraz szafkom.
Ewson
Pomieszczenie to połączenie stylu nowoczesnego z akcentami elegancji. Taki akcent stanowi między innymi łóżko FABRIZZO SQUERE P, które dzięki pikowanemu zagłówkowi, jest wygodne oraz subtelne. Ryflowane szafki nocne TOMIE w ciemnym kolorze, dodają stylowego charakteru. Sypialnia zachowana w jasnych barwach, dzięki czemu jest świeża i przejrzysta dla oka.
Krzemi
Elegancka sypialnia, która stanowi połączenie komfortowego miejsca wypoczynku oraz przestrzeni do pracy. Modne łóżko CELINE z wygodnym, pikowanym zagłówkiem stanowi centralny element sypialni. Pojemna szafa BASTIA, z dużym lustrem, to pojemny mebel, który pomieści wiele dużą część garderoby.
Grzegorz
Pokój dla 13-latki w minimalistycznym stylu, zachowany w jasnych barwach. Meble z kolekcji FEMII w kolorze białym alpejskim, sprawią, że wnętrze zyskuje lekkości i świeżości.
Realizacje z kategorii #kuchnia
Dorotaw
Metamorfoza obejmująca pomieszczenie, które pełni funkcję kuchni. Kuchnia zyskała sporo nowej przestrzeni do przechowywania, dzięki funkcjonalnym blatom oraz szafkom.
Beata
Ta kuchnia łączy w sobie nowoczesną biel frontów w białym połysku, z ciepłem drewna, tworząc przytulne, a zarazem nowoczesne wnętrze. Połączenie funkcjonalne i nowoczesne.
alakons
Dzięki stylowemu połączeniu kuchni z salonem oraz jadalnią, powiedzenie "przez żołądek do serca", nabiera nowego wymiaru. Zasiądźcie wspólnie z rodziną do stołu, lub wypocznijcie na wygodnych fotelach, zagłębiając się w swoim towarzystwie.
Ela
Złote dodatki pojawiające się w wielu miejscach takich jak bateria zlewozmywakowa, okap czy gałki dodają wnętrzu luksusowego wyglądu, a duży okrągły stół z serii OSLO idealnie wpasowuje się we wnętrze. Ponadto w zestawieniu z welurowymi krzesłami ABADA, kącik jadalniany jest nie tylko funkcjonalny, ale i elegancki.
Inne realizacje
Dorotaw
Metamorfoza obejmująca pomieszczenie, które pełni funkcję kuchni. Kuchnia zyskała sporo nowej przestrzeni do przechowywania, dzięki funkcjonalnym blatom oraz szafkom.
Ewson
Pomieszczenie to połączenie stylu nowoczesnego z akcentami elegancji. Taki akcent stanowi między innymi łóżko FABRIZZO SQUERE P, które dzięki pikowanemu zagłówkowi, jest wygodne oraz subtelne. Ryflowane szafki nocne TOMIE w ciemnym kolorze, dodają stylowego charakteru. Sypialnia zachowana w jasnych barwach, dzięki czemu jest świeża i przejrzysta dla oka.
Krzemi
Elegancka sypialnia, która stanowi połączenie komfortowego miejsca wypoczynku oraz przestrzeni do pracy. Modne łóżko CELINE z wygodnym, pikowanym zagłówkiem stanowi centralny element sypialni. Pojemna szafa BASTIA, z dużym lustrem, to pojemny mebel, który pomieści wiele dużą część garderoby.
Grzegorz
Pokój dla 13-latki w minimalistycznym stylu, zachowany w jasnych barwach. Meble z kolekcji FEMII w kolorze białym alpejskim, sprawią, że wnętrze zyskuje lekkości i świeżości.

W celu dostosowania strony do Twoich preferencji oraz zainteresowań przechowujemy na urządzeniu, z którego korzystasz (komputerze, telefonie itp.) tzw. „pliki cookies” i im podobne, z możliwością ich odczytu. Klikając „ Akceptuje” lub zamykając okno przy pomocy przycisku „X” wyrażasz zgodę na przetwarzanie Twoich danych. Pamiętaj, możesz w każdej chwili nie wyrazić zgody lub cofnąć zgodę na przetwarzanie Twoich danych osobowych.

Ponadto informujemy, że administratorem danych zawartych w tych plikach jest Agata S.A. Dane mogą być przetwarzane przez nas i naszych zaufanych partnerów w celach marketingowych, w szczególności poprzez wyświetlanie spersonalizowanych reklam, na podstawie naszego prawnie uzasadnionego interesu Więcej informacji na temat zasad przetwarzania danych osobowych, w tym o Twoich uprawnieniach, znajdziesz w naszej Polityce Prywatności.