No i ładnie No i ładnie

Przestronna kuchnia urządzona w jasnych kolorach

image
Zaprojektowane przez:
Magdalena Mrozek
Właściciel wnętrza
nowa kuchnia
image
tag
tag
tag
tag
tag
tag
image2
image3
image4
image5
image1
image2
image3
image4
image5

Przesuń suwak i zobacz jak zmieniło się wnętrze

before after


Przed
image
image
image
Po
image
image
image

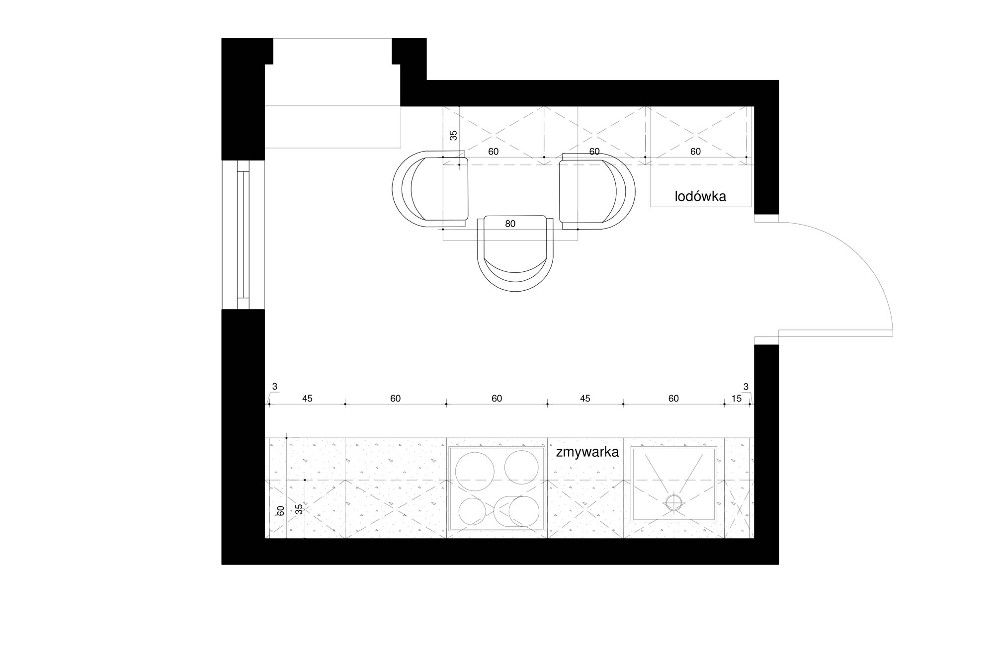
Niewielka kuchnia, w dość trudnym do zaprojektowania układzie - najważniejsze założenie: maksimum przechowywania i nowoczesny wygląd. Zostało spełnione również marzenie w postaci zmywarki, a oprócz niej swoje miejsce znalazły także nowe sprzęty jak piekarnik w zabudowie, płyta gazowa, czy ekspres. Staraliśmy się również, aby właściciele mieli jak najwięcej blatu roboczego, więc w tej roli sprawdzi się nowoczesny, nieco loftowy blat - KRONO o wybarwieniu district dark dodający wnętrzu charakteru. Świetnie pasujące do niego okazały się drewnopodobne fronty PINEA dąb vincenza, z delikatnymi, frezowanymi uchwytami. Z kolei szafki wiszące z lakierowanymi frontami SALSA beż połysk uspokajają kompozycję i pięknie odbijają światło. Od teraz przechowywanie nie powinno być problemem, zwłaszcza, że dookoła dużej, wolnostojącej lodówki zawisły jeszcze dodatkowe szafki. Na życzenie klientów pojawia się również niewielki, za to rozkładany stół ADEO oraz cztery tapicerowane krzesła FOLVIO w ciekawym odcieniu ciemnej zieleni.


Przedstawiona metamorfoza jest wizualizacją nowej aranżacji. Po szczegółowy projekt kuchni zapraszamy do salonów Agata w całej Polsce. Prezentowana oferta modułowych mebli kuchennych Qubik ważna jest na dzień publikacji i może ulec zmianie.


image
Więcej realizacji tego samego projektanta
Xxx
Loftowe wnętrze to idealne połączenie surowości cegły, z funkcjonalnością pomieszczenia dla młodzieży. Dodatek dla wnętrza stanowi komiksowa tapeta, a praktyczne meble, takie jak szafa Adbox, czy biurko narożne tworzą zgraną przestrzeń.
Zofia
Przestrzenie na poddaszu wymagają specjalnego potraktowania. Połączenie jasnych i pastelowych barw optycznie powiększa wnętrze i dodaje przytulności.
Pandaa
Sypialnia jest przestrzenią, w której każdy z nas pragnie wypoczynku. Z wizualizacją zaproponowaną przez nas, relaks jest na wyciągnięcie ręki! Pokój w stonowanych barwach, zachowany w loftowym stylu. Rozsiądź się wygodnie na dużym łóżku KONTREXT i odpłyń w błogi sen!
Dziuda
Kuchnia nierzadko postrzegana jest jako serce domu, dlatego też przy doborze elementów, zwracaliśmy uwagę na porządek oraz harmonię tego miejsca. Ryflowane fronty, stanowią dominujący efekt w zaprezentowanej przestrzeni, nadając jej stylu i nowoczesności.
Realizacje z kategorii #kuchnia
Dorotaw
Metamorfoza obejmująca pomieszczenie, które pełni funkcję kuchni. Kuchnia zyskała sporo nowej przestrzeni do przechowywania, dzięki funkcjonalnym blatom oraz szafkom.
Beata
Ta kuchnia łączy w sobie nowoczesną biel frontów w białym połysku, z ciepłem drewna, tworząc przytulne, a zarazem nowoczesne wnętrze. Połączenie funkcjonalne i nowoczesne.
alakons
Dzięki stylowemu połączeniu kuchni z salonem oraz jadalnią, powiedzenie "przez żołądek do serca", nabiera nowego wymiaru. Zasiądźcie wspólnie z rodziną do stołu, lub wypocznijcie na wygodnych fotelach, zagłębiając się w swoim towarzystwie.
Ela
Złote dodatki pojawiające się w wielu miejscach takich jak bateria zlewozmywakowa, okap czy gałki dodają wnętrzu luksusowego wyglądu, a duży okrągły stół z serii OSLO idealnie wpasowuje się we wnętrze. Ponadto w zestawieniu z welurowymi krzesłami ABADA, kącik jadalniany jest nie tylko funkcjonalny, ale i elegancki.
Inne realizacje
Dorotaw
Metamorfoza obejmująca pomieszczenie, które pełni funkcję kuchni. Kuchnia zyskała sporo nowej przestrzeni do przechowywania, dzięki funkcjonalnym blatom oraz szafkom.
Ewson
Pomieszczenie to połączenie stylu nowoczesnego z akcentami elegancji. Taki akcent stanowi między innymi łóżko FABRIZZO SQUERE P, które dzięki pikowanemu zagłówkowi, jest wygodne oraz subtelne. Ryflowane szafki nocne TOMIE w ciemnym kolorze, dodają stylowego charakteru. Sypialnia zachowana w jasnych barwach, dzięki czemu jest świeża i przejrzysta dla oka.
Krzemi
Elegancka sypialnia, która stanowi połączenie komfortowego miejsca wypoczynku oraz przestrzeni do pracy. Modne łóżko CELINE z wygodnym, pikowanym zagłówkiem stanowi centralny element sypialni. Pojemna szafa BASTIA, z dużym lustrem, to pojemny mebel, który pomieści wiele dużą część garderoby.
Grzegorz
Pokój dla 13-latki w minimalistycznym stylu, zachowany w jasnych barwach. Meble z kolekcji FEMII w kolorze białym alpejskim, sprawią, że wnętrze zyskuje lekkości i świeżości.

W celu dostosowania strony do Twoich preferencji oraz zainteresowań przechowujemy na urządzeniu, z którego korzystasz (komputerze, telefonie itp.) tzw. „pliki cookies” i im podobne, z możliwością ich odczytu. Klikając „ Akceptuje” lub zamykając okno przy pomocy przycisku „X” wyrażasz zgodę na przetwarzanie Twoich danych. Pamiętaj, możesz w każdej chwili nie wyrazić zgody lub cofnąć zgodę na przetwarzanie Twoich danych osobowych.

Ponadto informujemy, że administratorem danych zawartych w tych plikach jest Agata S.A. Dane mogą być przetwarzane przez nas i naszych zaufanych partnerów w celach marketingowych, w szczególności poprzez wyświetlanie spersonalizowanych reklam, na podstawie naszego prawnie uzasadnionego interesu Więcej informacji na temat zasad przetwarzania danych osobowych, w tym o Twoich uprawnieniach, znajdziesz w naszej Polityce Prywatności.